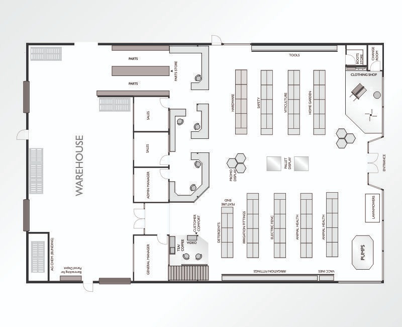
retail planning
The first step in getting started is to shape a plan that maximizes all available space in your retail display area taking into consideration the best placement of counters, fixtures and displays. This includes careful positioning of department categories and proper placement of aisles and feature ends.
When planning department placement it becomes most important to place planned and impulse items scientifically in order to make sales blossom into ever expanding profits.
We can design a floorplan for you that will cover all you need to maximize sales by creating an effective traffic flow throughout your retail display area.


Phone us for a free consultation to see how we can help with your retail planning - Price for floorplans starts at $300 + gst
We will be excited to chat with you to see what you need and how we can help you decide which way to go!
